1 / 75
Additorio completo
- Offerta attuale
- Stato
€
Importo totale dell'offerta
Vedi il dettaglio totale
Importo totale dell'offerta
Vedi il dettaglio totale
€
Importo dell'offerta massima
Vedi il dettaglio totale
Importo dell'offerta massima
Vedi il dettaglio totale
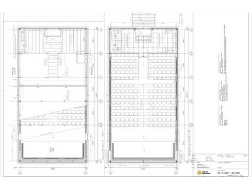
Specifiche del lotto
- Quantità
- 1
- Margine
- No
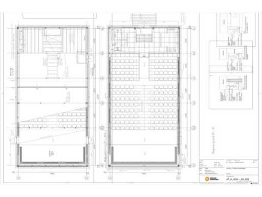
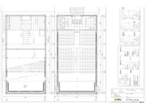
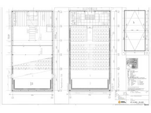
- Superficie totale
- 242m²
- Dimensione totale L
- 22000mm
- Dimensione totale L
- 11000mm
- Dimensione totale H
- 7220mm
Descrizione
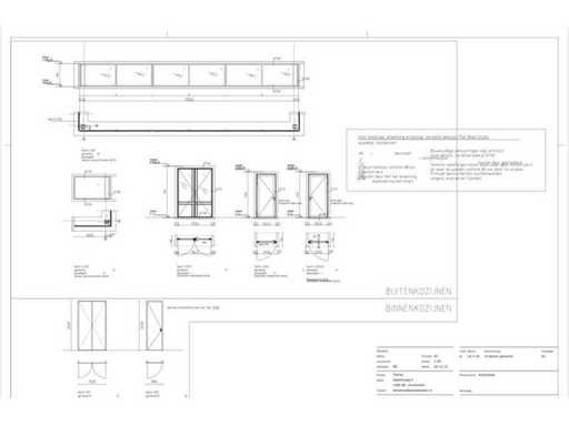
Si tratta di un edificio completo realizzato con strutture in acciaio con pannelli frontali. All'interno si trova una sala presentazioni completamente attrezzata con circa 140 posti a sedere. Inclusi immagine, luci, attrezzature audio, sala ricevimento con armadio e bagni. La sala tecnica è dotata di impianti climatizzatori climatizzatori.
Osservazioni
L'acquirente è responsabile dello smontaggio e della rimozione corretta delle merci secondo le normative olandesi sulla sicurezza. L'acquirente ha circa 2 mesi per lo smantellamento. Le fondamenta potrebbero essere lasciate indietro.
Ulteriori dettagli
Non esiste alcun diritto di ritiro.
L'età minima per visitare i giorni di veglia e raccolta è di 18 anni. I visitatori devono essere in grado di identificarsi.
Durante il giorno di raccolta è disponibile un carrello elevatore con autista, utilizzabile gratuitamente. La capacità massima di sollevamento è di 2,5 tonnellate.
L'uso del carrello elevatore è completamente a tuo rischio e pericolo. Inoltre, possono verificarsi tempi di attesa.
L'età minima per visitare i giorni di veglia e raccolta è di 18 anni. I visitatori devono essere in grado di identificarsi.
Durante il giorno di raccolta è disponibile un carrello elevatore con autista, utilizzabile gratuitamente. La capacità massima di sollevamento è di 2,5 tonnellate.
L'uso del carrello elevatore è completamente a tuo rischio e pericolo. Inoltre, possono verificarsi tempi di attesa.