1 / 21
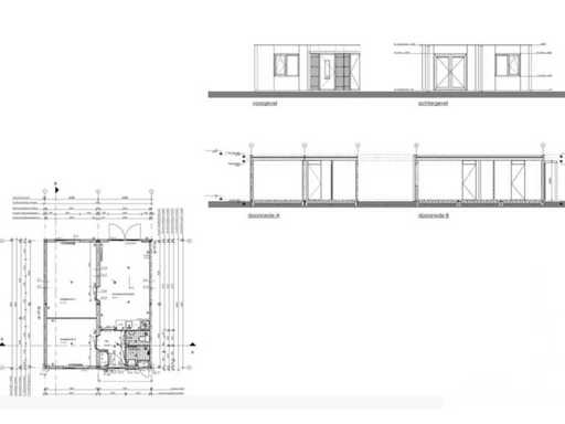
2017 Unità abitativa bifamiliare (4 volte)
- Offerta attuale
- Stato
€
Importo totale dell'offerta
Vedi il dettaglio totale
Importo totale dell'offerta
Vedi il dettaglio totale
€
Importo dell'offerta massima
Vedi il dettaglio totale
Importo dell'offerta massima
Vedi il dettaglio totale
Specifiche del lotto
- Quantità
- 4
- Margine
- No
- Anno di costruzione
- 2017
- Numero di finestre
- 6
Descrizione
Dotato di: unità cucina, servizi igienici composti da bagno e doccia, sistema di riscaldamento, pannelli solari e inverter, stanza di deposito separata con armadietto dei contatori. Le case sono scollegate da elettricità, acqua e fognature. Le connessioni devono essere scollegate per il trasporto. Inclusi i piastri stelcon che fungono da fondamenta.
Osservazioni
Ritiro su appuntamento il 23 febbraio 2026
Ulteriori dettagli
Non esiste alcun diritto di ritiro.
L'età minima per visitare i giorni di visione e consegna è di 18 anni. I visitatori devono essere in grado di identificarsi.
Durante la giornata di raccolta NON è disponibile alcun carrello elevatore in quella sede. Inoltre, possono verificarsi tempi di attesa.
15.273 kg
CO₂e
Questa è la quantità di emissioni di carbonio che puoi potenzialmente evitare acquistando questo articolo usato invece che nuovo.Per confronto, un volo Amsterdam - Berlino corrisponde a 78 kg CO₂e per passeggero.